Einbau einer Arztpraxis in ein neu saniertes Geschäftshaus.
- Auftraggeber:in
- Praxis Dr. WagenerPraxis Dr. Wagener
- Ort
- Binningen
- Mandatsform
- Architektur
- Status
- AbgeschlossenCompletedIn PlanungIn planningIn UmsetzungIn realisation
- Leistungen
- InnenarchitekturMieterausbau
- Dauer
Bevor wir Ihnen YouTube-Videos zeigen können, müssen wir Sie darüber informieren, dass beim Laden der Videos möglicherweise Daten an den Anbieter übermittelt werden. Mit dem Klick auf den Play Button akzeptieren Sie die Erhebung und Verarbeitung dieser Daten gemäß unserer Datenschutzerklärung.
Bevor wir Ihnen Vimeo-Videos zeigen können, müssen wir Sie darüber informieren, dass beim Laden der Videos möglicherweise Daten an den Anbieter übermittelt werden. Mit dem Klick auf den Play Button akzeptieren Sie die Erhebung und Verarbeitung dieser Daten gemäß unserer Datenschutzerklärung.









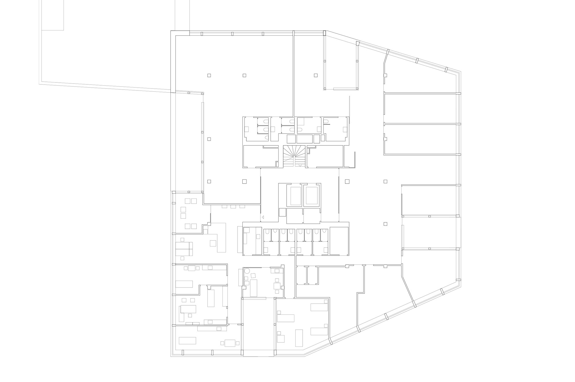
Im 1. Obergeschoss eines neu sanierten Geschäftshauses in Binningen, wurde auf einer leer geräumten Gesamtfläche von 220 m2, die Arztpraxis Dr. Wagener für Allgemeine Innere und Pharmazeutische Medizin eingebaut.
Die Anpassungen an die Grundrissstruktur erfolgten durch den zusätzlichen Einbau von Leichtbauwänden und Glastrennwänden. Die Fassade und die tragenden Bauteile blieben unverändert.
Nebst Empfang/Warten und den Behandlungszimmern, verfügt die Praxis auch über ein Labor, eine Teeküche und eine Loggia für das Praxisteam.
Projektinformationen
- GV SIA 416 m3
- 713
- GF SIA 416 m2
- 264
- Nutzfläche m2
- 220
- Fotografie
- Michael Fritschi
Fachplanung
- Elektro
- ETAVIS AG
- Sanitär
- Spaar AG
- Akustik
- Ehrsam Bauphysik AG
- Energie
- herrmann & partner Energietechnik GmbH
Weitere zugehörige Projekte

Können wir Ihnen bei Ihrem eigenen Projekt helfen?
Kontaktieren Sie uns für eine persönliche und individuelle Beratung.


.jpeg)







