Ersatzneubau in ruhig gelegenem Wohnviertel auf dem Basler Bruderholz.
- Auftraggeber:in
- PrivatPrivat
- Ort
- Basel
- Mandatsform
- Architektur
- Status
- AbgeschlossenCompletedIn PlanungIn planningIn UmsetzungIn realisation
- Leistungen
- Neubau
- Dauer
Bevor wir Ihnen YouTube-Videos zeigen können, müssen wir Sie darüber informieren, dass beim Laden der Videos möglicherweise Daten an den Anbieter übermittelt werden. Mit dem Klick auf den Play Button akzeptieren Sie die Erhebung und Verarbeitung dieser Daten gemäß unserer Datenschutzerklärung.
Bevor wir Ihnen Vimeo-Videos zeigen können, müssen wir Sie darüber informieren, dass beim Laden der Videos möglicherweise Daten an den Anbieter übermittelt werden. Mit dem Klick auf den Play Button akzeptieren Sie die Erhebung und Verarbeitung dieser Daten gemäß unserer Datenschutzerklärung.
















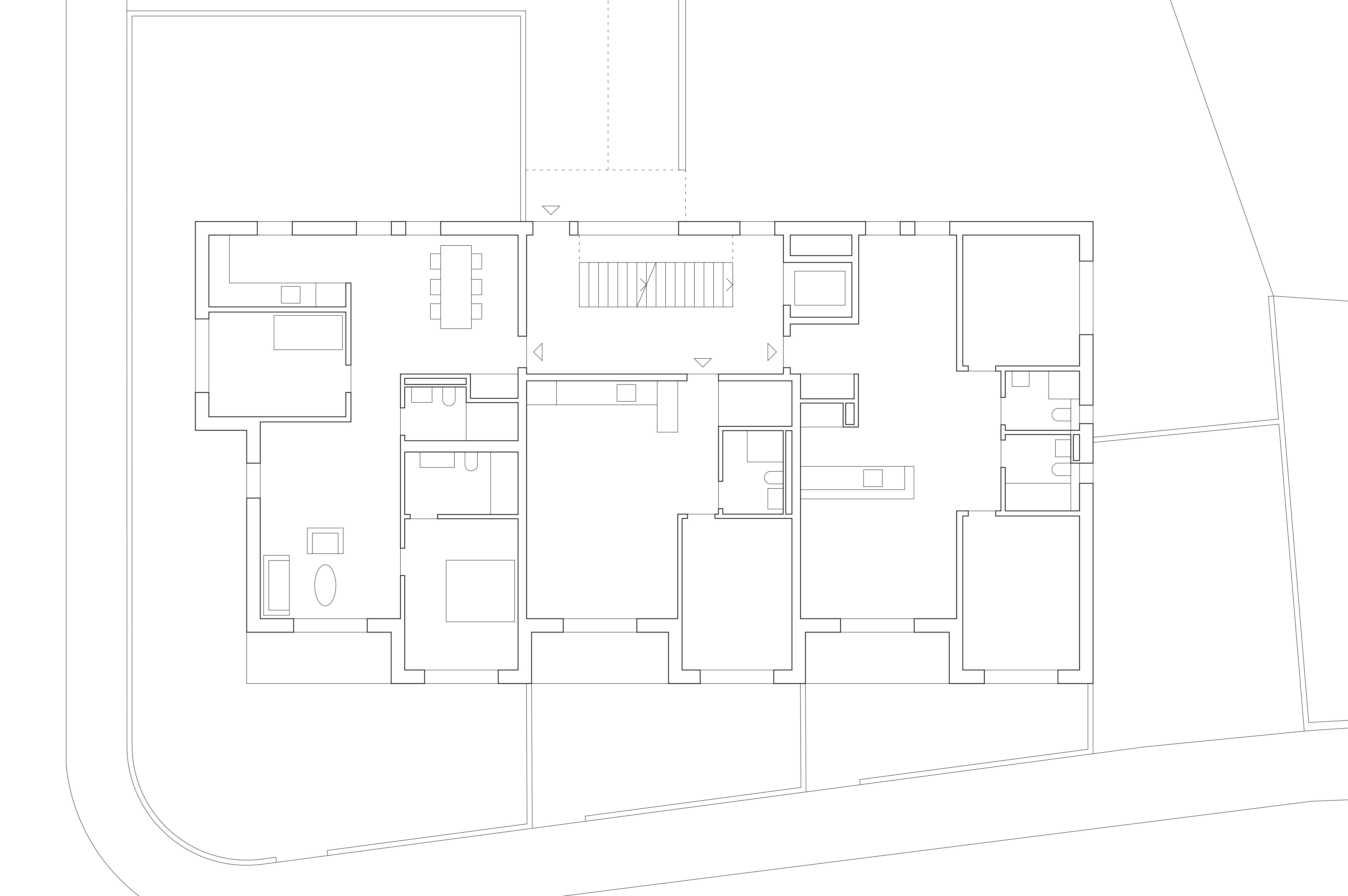
Der Ersatzneubau mit neuen attraktiven Mietwohnungen liegt an der Ecke C.F. Meyer-Strasse / Auf dem Hummel, in einem ruhig gelegenen Wohnviertel auf dem Basler Bruderholz. Durch den Entscheid für einen Neubau, konnte auf der Parzelle mehr Wohnraum auf energetisch neuestem Stand geschaffen werden. In den beiden unteren Geschossen befinden sich Etagenwohnungen, die Wohnungen im 2. Obergeschoss verbinden sich mit dem Dachgeschoss zu Maisonette Wohnungen. Sämtliche Wohnungen verfügen über einen privaten Aussenbereich in Form einer gedeckten Loggia oder einer Dachterrasse.
Das äussere Erscheinungsbild des dreigeschossigen Gebäudes mit zurückliegendem Dachgeschoss wird durch die Materialisierung mit Klinker geprägt. Die Liegenschaft konnte bereits ab Plan voll vermietet werden.
Projektinformationen
- GV SIA 416 m3
- 4'030
- GF SIA 416 m2
- 845
- Nutzfläche m2
- 648
- Fotografie
- Michael Fritschi
Fachplanung
- Statik
- Jauslin Stebler AG
- Elektro
- Scherler AG - Beratende Ingenieure
- HLKK
- Spaar AG
- Bauphysik
- Ehrsam Bauphysik AG
- Brandschutz
- A+F Brandschutz GmbH
Weitere zugehörige Projekte

Können wir Ihnen bei Ihrem eigenen Projekt helfen?
Kontaktieren Sie uns für eine persönliche und individuelle Beratung.


%20(2).jpg)







