Sanierung Vorder- und Hinterhaus und Einbau neuer Wohnungen in einem Gebäudekomplex aus den 60er Jahren.
- Auftraggeber:in
- Immobilien Basel-StadtImmobilien Basel-Stadt
- Ort
- Basel
- Mandatsform
- Architektur
- Status
- AbgeschlossenCompletedIn PlanungIn planningIn UmsetzungIn realisation
- Leistungen
- Umbau/Sanierung
- Dauer
Bevor wir Ihnen YouTube-Videos zeigen können, müssen wir Sie darüber informieren, dass beim Laden der Videos möglicherweise Daten an den Anbieter übermittelt werden. Mit dem Klick auf den Play Button akzeptieren Sie die Erhebung und Verarbeitung dieser Daten gemäß unserer Datenschutzerklärung.
Bevor wir Ihnen Vimeo-Videos zeigen können, müssen wir Sie darüber informieren, dass beim Laden der Videos möglicherweise Daten an den Anbieter übermittelt werden. Mit dem Klick auf den Play Button akzeptieren Sie die Erhebung und Verarbeitung dieser Daten gemäß unserer Datenschutzerklärung.











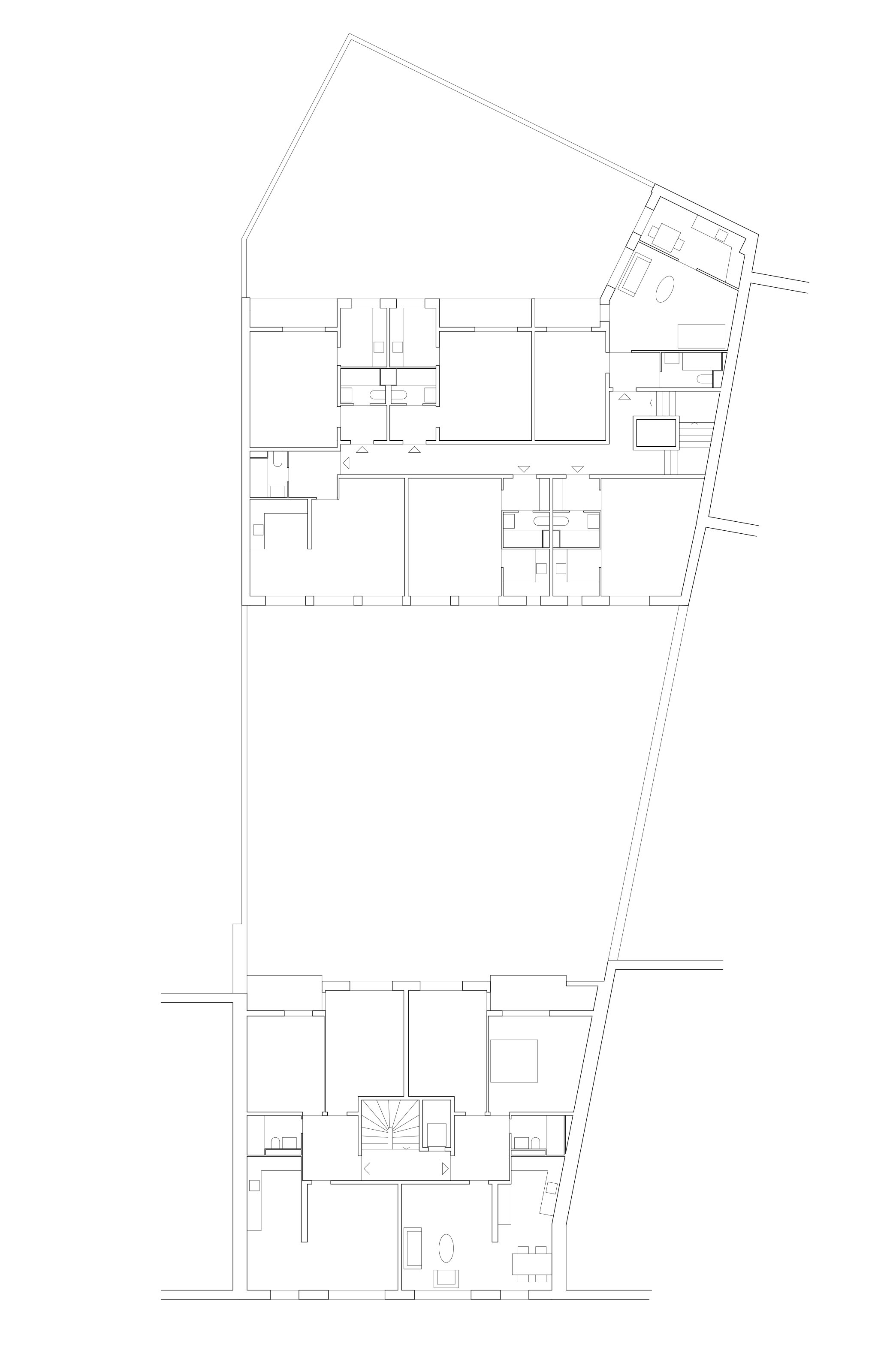
Die 1965 erstellte Überbauung ist Eigentum der Pensionskasse Basel-Stadt und besteht aus einem Vorder- und einem Hinterhaus. Während im Vorderhaus 3-Zimmer Wohnungen vorherrschen, wurde das Hinterhaus ursprünglich durch Kleinwohnungen und Büros besetzt. Der Schwerpunkt der Sanierung lag bei der Erneuerung der Haustechnik und der sanitären Installationen sowie dem Ersatz der Küchen und Bäder. Im Hinterhaus wurden zudem Büroflächen im Dachgeschoss und der bislang als Estrich genutzte Raum unter dem Dach in zwei grosse neue Wohnungen umgebaut. Im 2. Obergeschoss entstanden drei neue Kleinwohnungen anstelle der ursprünglichen Büros. Die Sanierung erfolgte in zwei Etappen und wurde in bewohntem Zustand durchgeführt.
Projektinformationen
- GV SIA 416 m3
- 7'963
- GF SIA 416 m2
- 2'885
- Nutzfläche m2
- 2'452
- Fotografie
- Archiv Blaser Architekten AG
Fachplanung
- Statik
- Fuhrer, Werder + Partner
- Elektro
- HKG Engineering AG
- Sanitär
- Der Ingeniör
- Bauphysik/Akustik
- Gruner AG
- Schadstoffe
- Carbotech AG
Weitere zugehörige Projekte

Können wir Ihnen bei Ihrem eigenen Projekt helfen?
Kontaktieren Sie uns für eine persönliche und individuelle Beratung.



%20(2).jpg)






