Umbau eines Geschäfts- und Mehrfamilienhauses in ein grosszügiges Einfamilienhaus.
- Auftraggeber:in
- PrivatPrivat
- Ort
- Riehen
- Mandatsform
- Architektur
- Status
- AbgeschlossenCompletedIn PlanungIn planningIn UmsetzungIn realisation
- Leistungen
- Umbau/Sanierung
- Dauer
Bevor wir Ihnen YouTube-Videos zeigen können, müssen wir Sie darüber informieren, dass beim Laden der Videos möglicherweise Daten an den Anbieter übermittelt werden. Mit dem Klick auf den Play Button akzeptieren Sie die Erhebung und Verarbeitung dieser Daten gemäß unserer Datenschutzerklärung.
Bevor wir Ihnen Vimeo-Videos zeigen können, müssen wir Sie darüber informieren, dass beim Laden der Videos möglicherweise Daten an den Anbieter übermittelt werden. Mit dem Klick auf den Play Button akzeptieren Sie die Erhebung und Verarbeitung dieser Daten gemäß unserer Datenschutzerklärung.













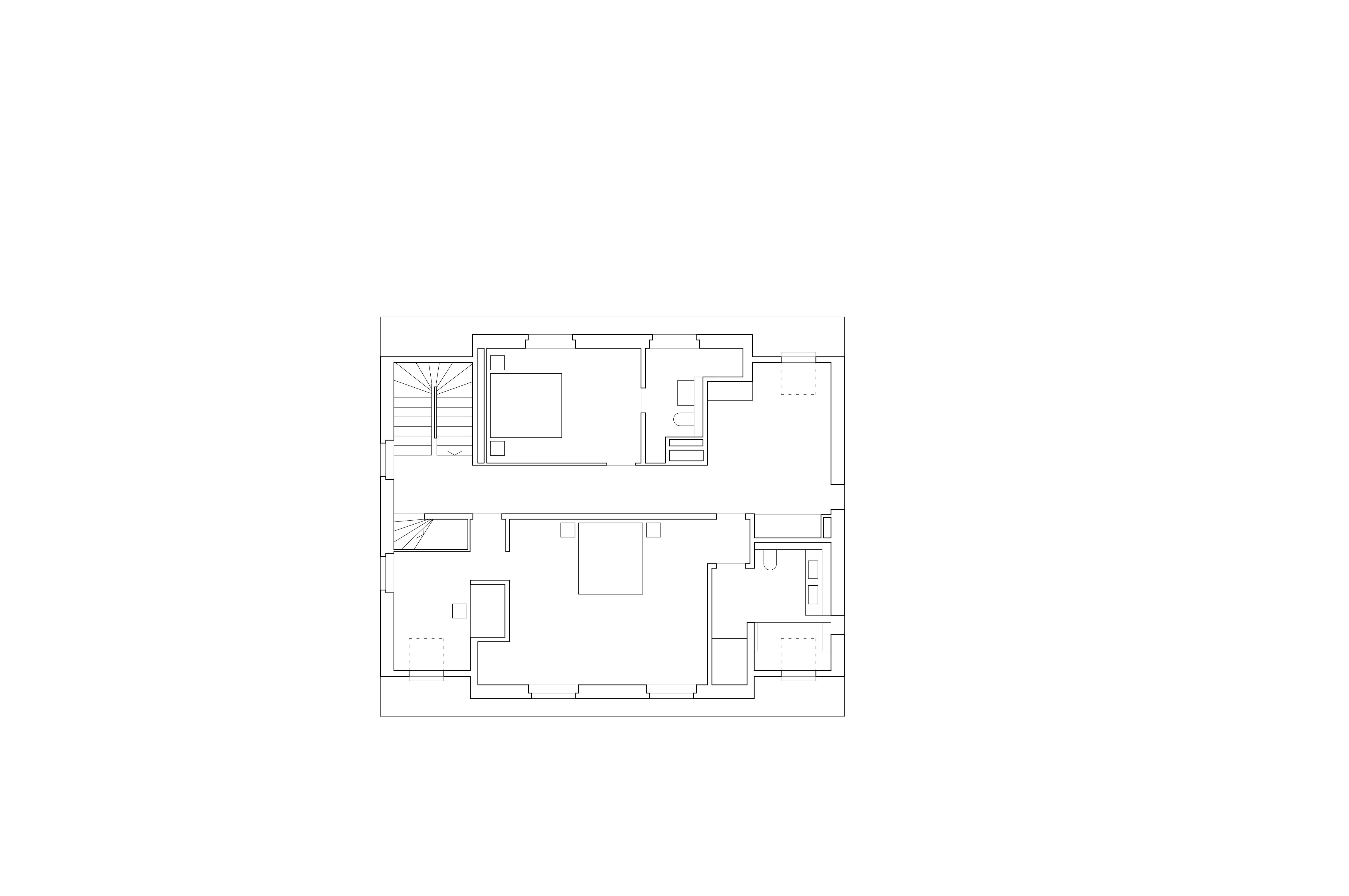
Das ehemalige Geschäfts- und Mehrfamilienhaus an der Morystrasse in Riehen aus den 20er Jahren wurde zu einem Einfamilienhaus mit grosszügigem Wohn-/ Essbereich im Erdgeschoss, Schlafräumen und Bädern in den Obergeschossen sowie Lagerräumen, Technik- und Hobbyraum im Untergeschoss umgebaut.
Das Haus wurde totalsaniert und der Innen- und Aussenraum neu als Wohnhaus für eine Familie definiert. Das Ladengeschoss im Hochparterre wurde als offener Innenraum mit dem Aussenraum im Vorgarten und Hinterhof verbunden.
Im rückwärtigen Garten wurde ein grosszügiger, vom Wohnraum zugänglicher Sitzplatz mit Pergola erstellt. Der ebenfalls vom Wohnraum zugängliche Vorgarten wurde als Kiesbett leicht erhöht und mit seitlichen Mauern in Sitzhöhe vom nordseitigen Gästezugang und von der südseitigen Zufahrt mit Carport und Schopf abgetrennt.
Den Abschluss des Vorgartens zur Strasse hin bildet ein 1.8 m hoher Zaun aus geschlitztem Stahlblech mit Tür zum Gästeeingang und Schiebetor auf der Carportseite.
Projektinformationen
- GV SIA 416 m3
- 1'716
- GF SIA 416 m2
- 645
- Nutzfläche m2
- 512
- Fotografie
- Michael Fritschi
Fachplanung
- Statik
- Jauslin Stebler AG
- Elektro
- Pronexis AG
- Sanitär
- Spaar AG
- Bauphysik
- Ehrsam Bauphysik AG
Weitere zugehörige Projekte

Können wir Ihnen bei Ihrem eigenen Projekt helfen?
Kontaktieren Sie uns für eine persönliche und individuelle Beratung.



%20(2).jpg)






