Teilnahme am Wettbewerb: Harmonische Neugestaltung des Teatro und Kursaal Locarno.
- Auftraggeber:in
- Kursaal Locarno SA c/o Città di Locarno (Gemeinde/Stadt)Kursaal Locarno SA c/o Città di Locarno (Gemeinde/Stadt)
- Ort
- Locarno (TI)
- Mandatsform
- Architektur
- Status
- AbgeschlossenCompletedIn PlanungIn planningIn UmsetzungIn realisation
- Leistungen
- Studie/Wettbewerb
- Dauer
Bevor wir Ihnen YouTube-Videos zeigen können, müssen wir Sie darüber informieren, dass beim Laden der Videos möglicherweise Daten an den Anbieter übermittelt werden. Mit dem Klick auf den Play Button akzeptieren Sie die Erhebung und Verarbeitung dieser Daten gemäß unserer Datenschutzerklärung.
Bevor wir Ihnen Vimeo-Videos zeigen können, müssen wir Sie darüber informieren, dass beim Laden der Videos möglicherweise Daten an den Anbieter übermittelt werden. Mit dem Klick auf den Play Button akzeptieren Sie die Erhebung und Verarbeitung dieser Daten gemäß unserer Datenschutzerklärung.


.jpg)
.jpg)
.jpg)
.jpg)
.jpg)
.jpg)
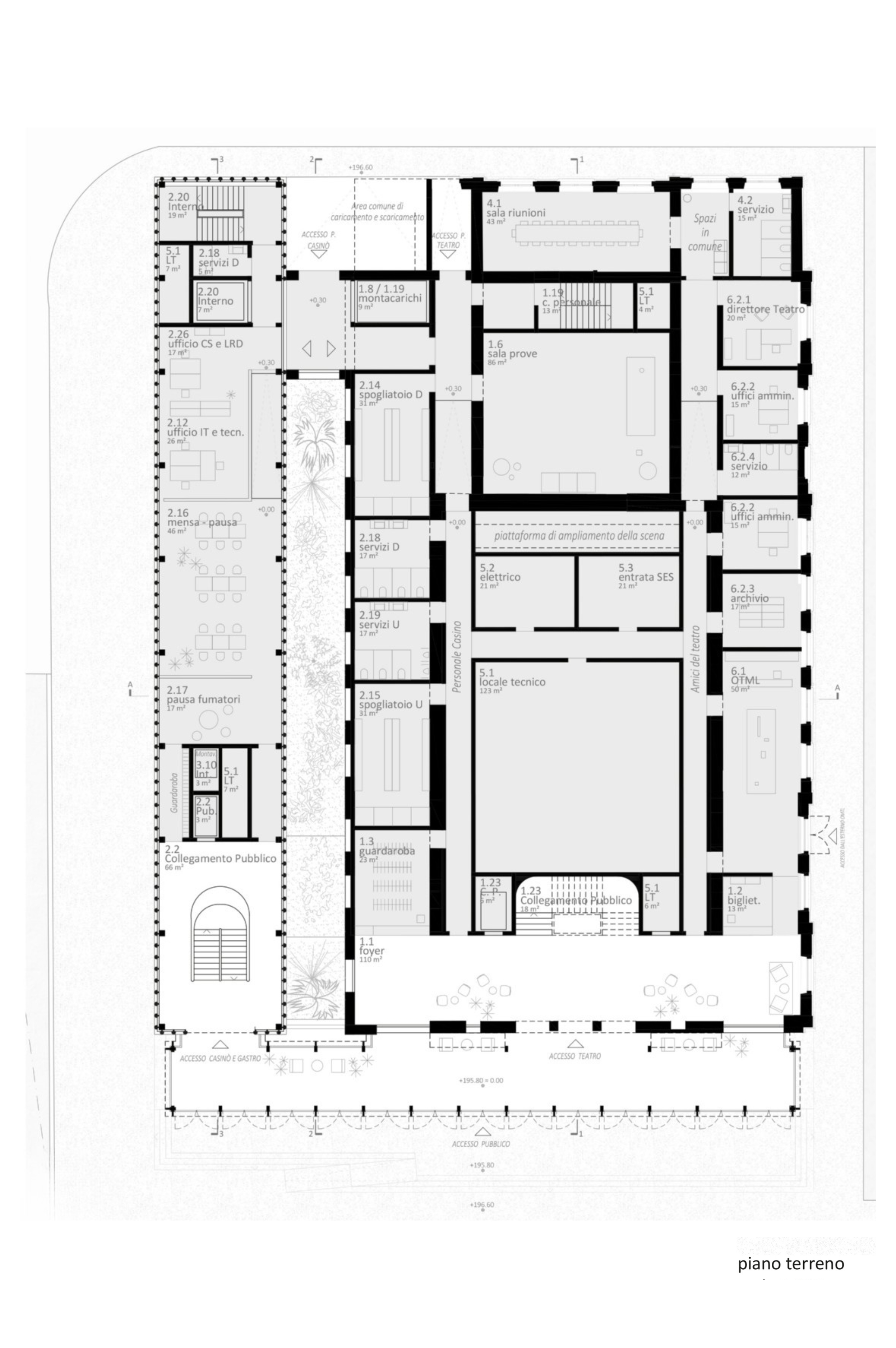
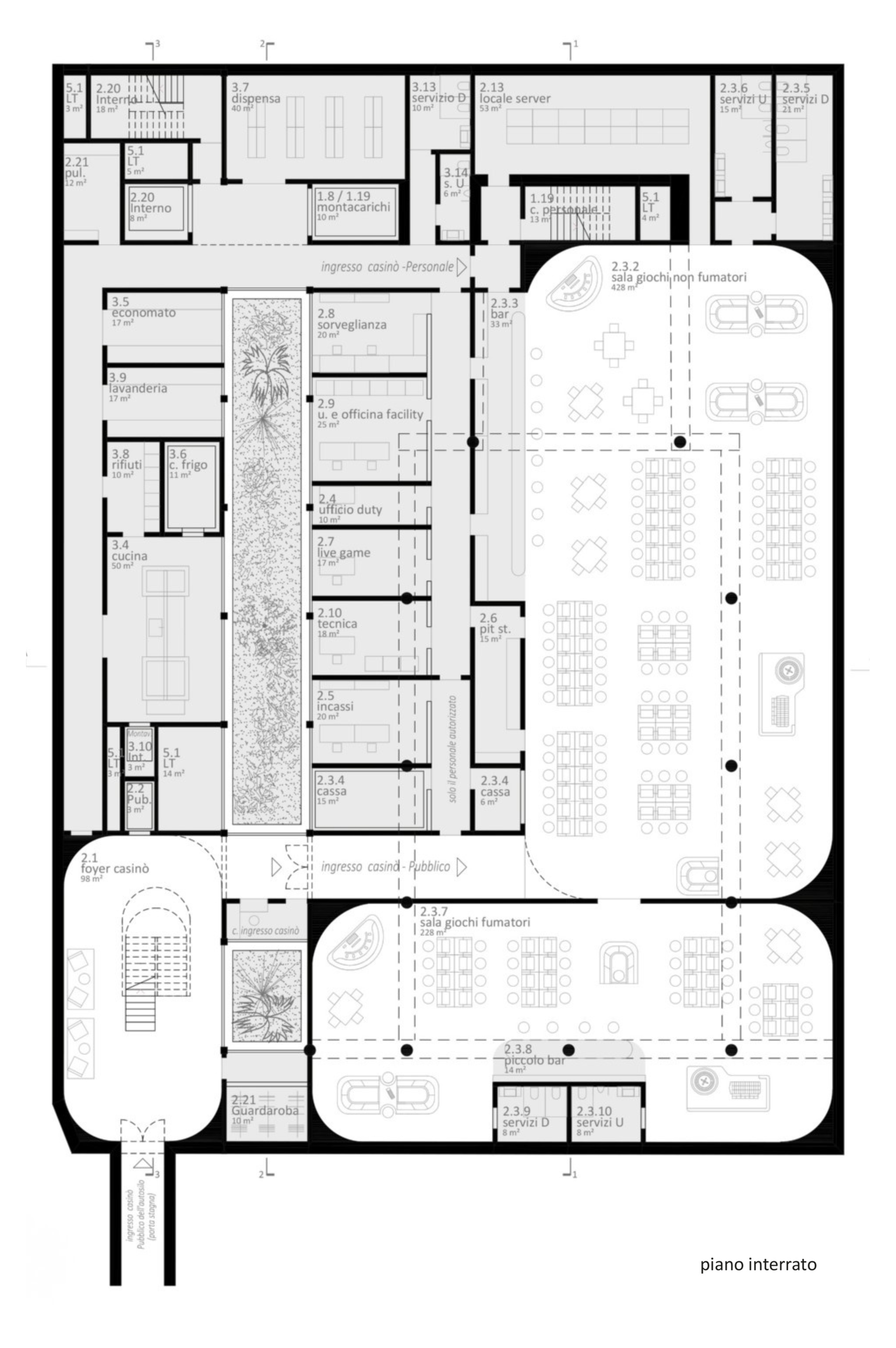
Die Geschichte des Teatro und Kursaal Locarno ist von Wandel und einer herausfordernden Koexistenz geprägt. Seit dem ursprünglichen Entwurf von Bernasconi und Franzoni im Jahr 1902 folgten im Laufe der Zeit zahlreiche Umbauten und Erweiterungen. Mit dem Ergebnis, dass sich das Gebäude zu einem komplexen Gefüge mit unterschiedlichen Stilen entwickelt hat. Die verschiedenen Nutzungen - Theater und Casino – unterstreichen das Gefühl von Heterogenität. Mit der geplanten Renovierung und Erweiterung wird nun das Ziel verfolgt, ein harmonisches und architektonisches Ganzes zu schaffen, um die Kultur und das urbane Leben Locarnos angemessen zu würdigen.
Gemeinsam mit unseren Kolleginnen und Kollegen von STUDIOPEZ haben wir am Wettbewerb für die für Renovierung und Erweiterung teilgenommen und einen Entwurf eingereicht, der das Gebäude in zwei klar definierte Einheiten gliedert – eine für das Theater, eine für das Casino. Das Casino präsentiert sich als elegante Glas-Keramik-Box im Dialog mit dem historischen Theater, verbunden durch eine Arkade. Trotz dieser klaren Aufteilung wird ein ausgewogenes Gesamtbild erzeugt, in welchem zeitgenössische, funktionale und historische Architektur harmonisch miteinander verschmelzen. Gelingen soll dies ausserdem durch die Rekonstruktion originaler Bauteile sowie die Sichtbarmachung der historischen Substanz.
Funktionales Konzept – Zusammenführung und klare Trennung.
Das Untergeschoss verbindet beide Nutzungen und beherbergt Spielsäle und Küche; ein Patio versorgt Büroräume und Gastronomie mit Licht und Luft. Theater, Casino und Restaurant sind funktional getrennt, werden jedoch durch das neue Foyer und eine zentrale Treppe miteinander verbunden, die flexible Zugänge zu allen Ebenen ermöglichen. Das Dach dient als Terrasse und bietet einen zusätzlichen Veranstaltungs- und Erlebnisraum mit Panoramablick über Locarno.
Fassade und Arkade – Ausdruck von Identität und Verbindung.
Das Theater wird restauriert und teilweise abstrakt neu interpretiert; die historische Substanz bleibt geschützt und wird energetisch optimiert.
Projektinformationen
Fachplanung
Weitere zugehörige Projekte

Können wir Ihnen bei Ihrem eigenen Projekt helfen?
Kontaktieren Sie uns für eine persönliche und individuelle Beratung.

.jpeg)








