Installation of a medical practice for orthopaedics, traumatology and rheumatology in a newly renovated commercial building.
- Client
- OrthoPlusBaselOrthoPlusBasel
- Location
- Binningen
- Mandate form
- Architecture
- Status
- AbgeschlossenCompletedIn PlanungIn planningIn UmsetzungIn realisation
- Services
- Conversion/Renovation
- Duration
Bevor wir Ihnen YouTube-Videos zeigen können, müssen wir Sie darüber informieren, dass beim Laden der Videos möglicherweise Daten an den Anbieter übermittelt werden. Mit dem Klick auf den Play Button akzeptieren Sie die Erhebung und Verarbeitung dieser Daten gemäß unserer Datenschutzerklärung.
Bevor wir Ihnen Vimeo-Videos zeigen können, müssen wir Sie darüber informieren, dass beim Laden der Videos möglicherweise Daten an den Anbieter übermittelt werden. Mit dem Klick auf den Play Button akzeptieren Sie die Erhebung und Verarbeitung dieser Daten gemäß unserer Datenschutzerklärung.








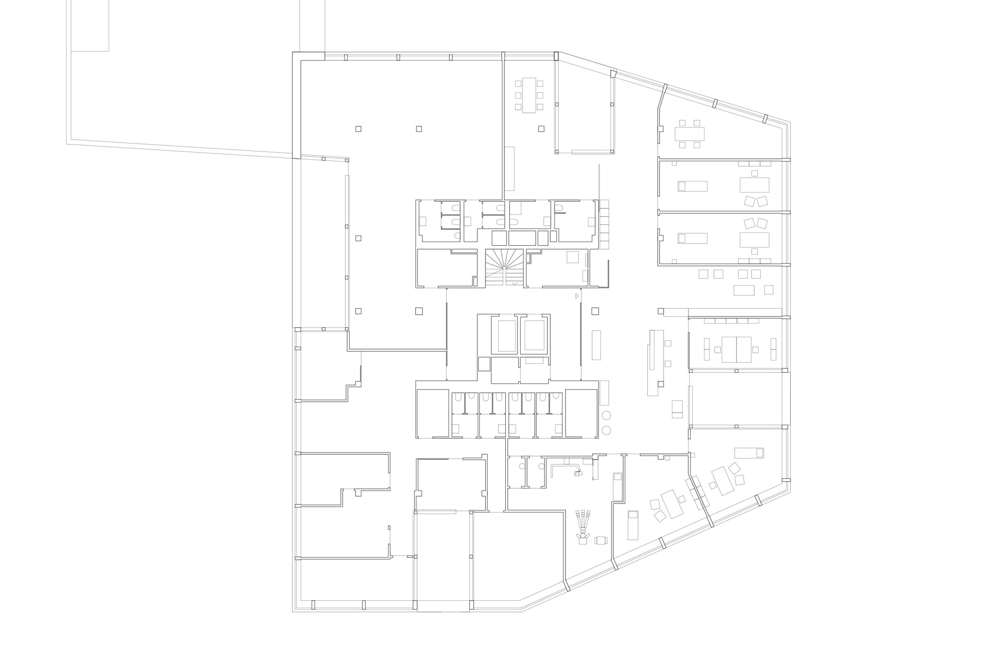
On the second floor of a newly renovated commercial building in Binningen, the orthopaedic practice OrthoPlusBasel was built on a vacant total area of 430 m2. In addition to the reception/waiting area and the treatment rooms, the practice also has a laboratory, an X-ray room, a kitchen and a loggia for the practice team.
The adjustments to the floor plan structure were made through the additional installation of lightweight walls and glass partitions. The façade and load-bearing components remained unchanged.
Project information
- GV SIA 416 m3
- 1'369
- GF SIA 416 m2
- 517
- Nutzfläche m2
- 432
- Fotografie
- Michael Fritschi
Technical Planning
- Elektro
- ETAVIS AG
- Sanitär
- Spaar AG
- Akustik
- Ehrsam Bauphysik AG
- Energie
- herrmann & partner Energietechnik GmbH
Further related projects

Can we help you with your own project?
Contact us for a personal and individual consultation.

.jpg)





.jpeg)


